ROMOLD DN1000 & DN625
Customized Manhole Chamber Solutions

The ROMOLD DN1000 pre-benched manhole chambers offer an extremely simple solution for gravity wastewater, stormwater and industrial waste applications. A large number of manhole bases are available, offering solutions for every inlet angle from 90˚ through to 270˚, along with multiple inlet options.

For manhole chambers that require inlet angles outside of the standard configurations, or for manholes connecting to different pipe sizes and materials, AML offer customized solutions.

Custom manhole chamber bases are produced in Kerikeri at the AML workshop. Starting with ROMOLD mouldings, the bases are either modified or built from scratch to reflect the project requirements. This allows a near unlimited scope of solutions and ensures that the ROMOLD manhole can be applied to all New Zealand projects.

Contact us to discuss customized solutions for:

  • Additional inlet angles
  • Steep grade pipelines
  • Changes of pipe size
  • Renewal manholes
  • PE pressure pipe connections (discharge chambers)
  • Euroflo stormwater manhole chambers
  • PE wastewater manhole chambers
  • Industrial applications such as knockout chambers or biofilter/condensate traps
  • Bubble up chambers
  • Energy compensation chambers
  • Valve or meter chambers

Contact Us How to Order

Photos of Custom Solutions

Customized Solutions Additional Inlets into Manhole
Customized Solutions Additional Inlets into Manhole
Customized Solutions Additional Inlets into Manhole
Customized Solutions Additional Inlets into Manhole
Customized Solutions Additional Inlets into Manhole
Customized Solutions Additional Inlets into Manhole
Customized Solutions Additional Inlets into Manhole
Customized Solutions Additional Inlets into Manhole
Customized Solutions Additional Inlets into Manhole
Customized Solutions Additional Inlets into Manhole
Customized Solutions Additional Inlets into Manhole
Customized Solutions Additional Inlets into Manhole
Customized Solutions Additional Inlets into Manhole
Customized Solutions Additional Inlets into Manhole
Customized Solutions Additional Inlets into Manhole
Customized Solutions Additional Inlets into Manhole
Customized Solutions Additional Inlets into Manhole
Customized Solutions Additional Inlets into Manhole
Customized Solutions Additional Inlets into Manhole
Customized Solutions Additional Inlets into Manhole
Customized Solutions Additional Inlets into Manhole
Customized Solutions Additional Inlets into Manhole
Customized Solutions Additional Inlets into Manhole
Customized Solutions Additional Inlets into Manhole
Customized Solutions Additional Inlets into Manhole
Customized Solutions Additional Inlets into Manhole
Customized Solutions Additional Inlets into Manhole
Customized Solutions Additional Inlets into Manhole
Customized Solutions Discharge Manholes
Customized Solutions Discharge Manholes
Customized Solutions Discharge Manholes
Customized Solutions Discharge Manholes
Customized Solutions Discharge Manholes
Customized Solutions Discharge Manholes
Customized Solutions Discharge Manholes
Customized Solutions Discharge Manholes
Customized Solutions Discharge Manholes
Customized Solutions Discharge Manholes
Customized Solutions Discharge Manholes
Customized Solutions Discharge Manholes
Customized Solutions Discharge Manholes
Customized Solutions Discharge Manholes
Customized Solutions Discharge Manholes
Customized Solutions Discharge Manholes
Customized Solutions Discharge Manholes
Customized Solutions Discharge Manholes
Customized Solutions Discharge Manholes
Customized Solutions Discharge Manholes
Customized Solutions Discharge Manholes
Customized Solutions Discharge Manholes
Customized Solutions Discharge Manholes
Customized Solutions Discharge Manholes
Customized Solutions Discharge Manholes
Customized Solutions Discharge Manholes
Customized Solutions Discharge Manholes
Customized Solutions Discharge Manholes
Customized Solutions Discharge Manholes
Customized Solutions Discharge Manholes
Customized Solutions Discharge Manholes
Customized Solutions Discharge Manholes
Customized Solutions Discharge Manholes
Customized Solutions Discharge Manholes
Customized Solutions Discharge Manholes
Customized Solutions Discharge Manholes
Customized Solutions Discharge Manholes
Customized Solutions Discharge Manholes
Customized Solutions Discharge Manholes
Customized Solutions Discharge Manholes
Customized Solutions Discharge Manholes
Customized Solutions Discharge Manholes
Customized Solutions Discharge Manholes
Customized Solutions Discharge Manholes
Customized Solutions Discharge Manholes
Customized Solutions Discharge Manholes
Customized Solutions Discharge Manholes
Customized Solutions Discharge Manholes
Customized Solutions Discharge Manholes
Customized Solutions Discharge Manholes
Customized Solutions Discharge Manholes
Customized Solutions Discharge Manholes
Customized Solutions Discharge Manholes
Customized Solutions Discharge Manholes
Customized Solutions Discharge Manholes
Customized Solutions Discharge Manholes
Customized Solutions Discharge Manholes
Customized Solutions Discharge Manholes
Customized Solutions Discharge Manholes
Customized Solutions Discharge Manholes
Customized Solutions Discharge Manholes
Customized Solutions Discharge Manholes
Customized Solutions Discharge Manholes
Customized Solutions Discharge Manholes
Customized Solutions Drop Manholes for Infrapipe
Customized Solutions Drop Manholes for Infrapipe
Customized Solutions Drop Manholes for Infrapipe
Customized Solutions Drop Manholes for Infrapipe
Customized Solutions Drop Manholes for Infrapipe
Customized Solutions Drop Manholes for Infrapipe
Customized Solutions Drop Manholes for Infrapipe
Customized Solutions Drop Manholes for Infrapipe
Customized Solutions Drop Manholes for Infrapipe
Customized Solutions Drop Manholes for Infrapipe
Customized Solutions Drop Manholes for Infrapipe
Customized Solutions Drop Manholes for Infrapipe
Customized Solutions Drop Manholes for Infrapipe
Customized Solutions Drop Manholes for Infrapipe
Customized Solutions Drop Manholes for Infrapipe
Customized Solutions Drop Manholes for Infrapipe
Customized Solutions Drop Manholes for Infrapipe
Customized Solutions Drop Manholes for Infrapipe
Customized Solutions Drop Manholes Drop for Waimakariri
Customized Solutions Drop Manholes Drop for Waimakariri
Customized Solutions Drop Manholes Drop for Waimakariri
Customized Solutions Drop Manholes Drop for Waimakariri
Customized Solutions Drop Manholes Drop for Waimakariri
Customized Solutions Drop Manholes Drop for Waimakariri
Customized Solutions Drop Manholes Drop for Waimakariri
Customized Solutions Drop Manholes Drop for Waimakariri
Customized Solutions Drop Manholes Drop for Waimakariri
Customized Solutions Drop Manholes Drop for Waimakariri
Customized Solutions Drop Manholes Drop for Waimakariri
Customized Solutions Drop Manholes Drop for Waimakariri
Customized Solutions Drop Manholes Drop for Waimakariri
Customized Solutions Drop Manholes Drop for Waimakariri
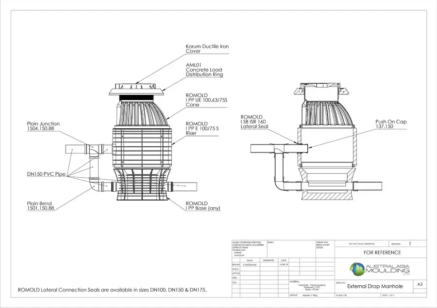
Customized Solutions External Drop Pipe Manhole
Customized Solutions External Drop Pipe Manhole
Customized Solutions External Drop Pipe Manhole
Customized Solutions External Drop Pipe Manhole
Customized Solutions External Drop Pipe Manhole
Customized Solutions External Drop Pipe Manhole
Customized Solutions External Drop Pipe Manhole
Customized Solutions External Drop Pipe Manhole
Customized Solutions External Drop Pipe Manhole
Customized Solutions External Drop Pipe Manhole
Customized Solutions External Drop Pipe Manhole
Customized Solutions External Drop Pipe Manhole
Customized Solutions External Drop Pipe Manhole
Customized Solutions External Drop Pipe Manhole
Customized Solutions External Drop Pipe Manhole
Customized Solutions External Drop Pipe Manhole
Customized Solutions External Drop Pipe Manhole
Customized Solutions External Drop Pipe Manhole
Customized Solutions External Drop Pipe Manhole
Customized Solutions External Drop Pipe Manhole
Customized Solutions External Drop Pipe Manhole
Customized Solutions External Drop Pipe Manhole
Customized Solutions Energy Compensation Chamber
Customized Solutions Energy Compensation Chamber
Customized Solutions Energy Compensation Chamber
Customized Solutions Energy Compensation Chamber
Customized Solutions Energy Compensation Chamber
Customized Solutions Energy Compensation Chamber
Customized Solutions Energy Compensation Chamber
Customized Solutions Energy Compensation Chamber
Customized Solutions Euroflo Manhole Chambers
Customized Solutions Euroflo Manhole Chambers
Customized Solutions Euroflo Manhole Chambers
Customized Solutions Euroflo Manhole Chambers
Customized Solutions Euroflo Manhole Chambers
Customized Solutions Euroflo Manhole Chambers
Customized Solutions Euroflo Manhole Chambers
Customized Solutions Euroflo Manhole Chambers
Customized Solutions Euroflo Manhole Chambers
Customized Solutions Euroflo Manhole Chambers
Customized Solutions Euroflo Manhole Chambers
Customized Solutions Euroflo Manhole Chambers
Customized Solutions Industrial Application Manhole Biofilter Trap
Customized Solutions Industrial Application Manhole Biofilter Trap
Customized Solutions Industrial Application Manhole Biofilter Trap
Customized Solutions Industrial Application Manhole Biofilter Trap
Customized Solutions Industrial Application Manhole Biofilter Trap
Customized Solutions Industrial Application Manhole Biofilter Trap
Customized Solutions Industrial Application Manhole Knock Out Chamber
Customized Solutions Industrial Application Manhole Knock Out Chamber
Customized Solutions Industrial Application Manhole Knock Out Chamber
Customized Solutions Industrial Application Manhole Knock Out Chamber
Customized Solutions Industrial Application Manhole Knock Out Chamber
Customized Solutions Industrial Application Manhole Knock Out Chamber
Customized Solutions Manholes for PE Lines
Customized Solutions Manholes for PE Lines
Customized Solutions Manholes for PE Lines
Customized Solutions Manholes for PE Lines
Customized Solutions Manholes for PE Lines
Customized Solutions Manholes for PE Lines
Customized Solutions Fountain Water Retention Chamber
Customized Solutions Fountain Water Retention Chamber
Customized Solutions Fountain Water Retention Chamber
Customized Solutions Fountain Water Retention Chamber
Customized Solutions Two outlet manhole
Customized Solutions Two outlet manhole
Customized Solutions Two outlet manhole
Customized Solutions Two outlet manhole
Customized Solutions Two outlet manhole
Customized Solutions Two outlet manhole
Customized Solutions Blue Baths Renewal Project
Customized Solutions Blue Baths Renewal Project
Customized Solutions Blue Baths Renewal Project
Customized Solutions Blue Baths Renewal Project
Customized Solutions Blue Baths Renewal Project
Customized Solutions Blue Baths Renewal Project
Customized Solutions Blue Baths Renewal Project
Customized Solutions Blue Baths Renewal Project
Customized Solutions Blue Baths Renewal Project
Customized Solutions Blue Baths Renewal Project
Customized Solutions Blue Baths Renewal Project
Customized Solutions Blue Baths Renewal Project
Customized Solutions Kawerau manhole Renewal Project
Customized Solutions Kawerau manhole Renewal Project
Customized Solutions Kawerau manhole Renewal Project
Customized Solutions Kawerau manhole Renewal Project
Customized Solutions Kawerau manhole Renewal Project
Customized Solutions Kawerau manhole Renewal Project
Customized Solutions Kawerau manhole Renewal Project
Customized Solutions Kawerau manhole Renewal Project
Customized Solutions Kawerau manhole Renewal Project
Customized Solutions Kawerau manhole Renewal Project
Customized Solutions Ohope Beach Discharge Chamber Renewal Project
Customized Solutions Ohope Beach Discharge Chamber Renewal Project
Customized Solutions Ohope Beach Discharge Chamber Renewal Project
Customized Solutions Ohope Beach Discharge Chamber Renewal Project
Customized Solutions Ohope Beach Discharge Chamber Renewal Project
Customized Solutions Ohope Beach Discharge Chamber Renewal Project
Customized Solutions Ohope Beach Discharge Chamber Renewal Project
Customized Solutions Ohope Beach Discharge Chamber Renewal Project
Customized Solutions Ohope Beach Discharge Chamber Renewal Project
Customized Solutions Ohope Beach Discharge Chamber Renewal Project
Customized Solutions Ohope Beach Discharge Chamber Renewal Project
Customized Solutions Ohope Beach Discharge Chamber Renewal Project
Customized Solutions Ohope Beach Discharge Chamber Renewal Project
Customized Solutions Ohope Beach Discharge Chamber Renewal Project
Customized Solutions Ohope Beach Discharge Chamber Renewal Project
Customized Solutions Ohope Beach Discharge Chamber Renewal Project
Customized Solutions Ohope Beach Discharge Chamber Renewal Project
Customized Solutions Ohope Beach Discharge Chamber Renewal Project
Customized Solutions Stormwater Manholes
Customized Solutions Stormwater Manholes
Customized Solutions Stormwater Manholes
Customized Solutions Stormwater Manholes
Customized Solutions Stormwater Manholes
Customized Solutions Stormwater Manholes
Customized Solutions Stormwater Manholes
Customized Solutions Stormwater Manholes
Customized Solutions Stormwater Manholes
Customized Solutions Stormwater Manholes
Customized Solutions Stormwater Manholes
Customized Solutions Stormwater Manholes
Customized Solutions Stormwater Manholes
Customized Solutions Stormwater Manholes
Customized Solutions Stormwater Manholes
Customized Solutions Stormwater Manholes
Customized Solutions Stormwater Manholes
Customized Solutions Stormwater Manholes
Customized Solutions Stormwater Manholes
Customized Solutions Stormwater Manholes
Customized Solutions Stormwater Manholes
Customized Solutions Stormwater Manholes
Customized Solutions Stormwater Manholes
Customized Solutions Stormwater Manholes
Customized Solutions Stormwater Manholes
Customized Solutions Stormwater Manholes
Customized Solutions Stormwater Manholes
Customized Solutions Stormwater Manholes
Customized Solutions Stormwater Manholes
Customized Solutions Stormwater Manholes
Customized Solutions Stormwater Manholes
Customized Solutions Stormwater Manholes